Description de l'offre
À quelques pas du Palm Beach et de la Croisette, cet appartement d’exception offre un cadre de vie raffiné où chaque détail a été pensé pour allier confort et élégance. Situé en étage élevé, il bénéficie d’une belle vue mer sur les Îles de Lérins, véritable tableau qui accompagne le quotidien.
-
Résidence de standing avec piscine
-
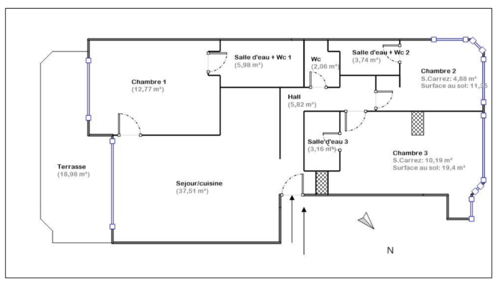
Superficie 102 m² (86 m² Carrez) entièrement rénovée avec des prestations haut-de-gamme
-
Séjour baigné de lumière, orienté plein sud, ouvrant sur une terrasse de 19 m² avec vue mer
-
Cuisine ouverte et entièrement équipée
-
Une suite parentale avec accès à la terrasse
-
Deux autres suites élégantes dont une avec espace bureau et dressing
-
WC invités séparés
-
1 garage + 1 place de parking + 1 cave en sous-sol
Un appartement rare, pensé comme un écrin de sérénité dans l’un des quartiers les plus recherchés de Cannes, à deux pas des plages, des ports et des commerces. L’adresse idéale pour une résidence principale ou un pied-à-terre de prestige.
Lucas : 07 61 60 68 90
